2020.06 ~ 2020.07 여름 워크샵
“공도 시민청 in 경기” 기본계획
- 담당교수
- 김준경
- 참여학생
- 이주영, 김경민, 신은영, 김은수, 조준범, 이소연, 전아름, 김주찬, 인진환
“공도 시민청 in 경기” 기본계획
안성시청 정책기획담당관에서 의뢰하여 2020년 여름방학 워크샵으로 진행되었던 프로젝트이다.
공도읍은 안성시 전체 인구중 31%가 거주하는 지역이지만, 지역 주민들의 복지, 문화, 체육 등 공공시설이 매우 부족한 지역이다. 이러한 공도 지역에 모든 세대가 이용할 수 있는 문화체육복지공간을 확보하고 이를 침체된 공도 구도심의 활성화를 위한 거점으로 이용하기 위해 안성시는 옛 공도 읍사무소 부지에 ‘공도시민청’ 건립계획을 수립하였으며, 타당성 조사와 함께 디자인 방향성을 검토하기 위해 JK Studio에 기본계획을 의뢰하였다.
본 프로젝트는 시민청의 계획을 다양한 방향에서 검토하기 위해 일체형, 분동형, 리모델링형 세 가지 유형으로 구분하여 진행하였으며 주차계획, 내부공간계획, 외부공간계획 등 구체적은 계획에 있어서도 모두 차별성을 두어 기획설계로서 앞으로의 프로젝트 진행에 고려해야 할 사안, 문제점, 주안점 등을 도출할 수 있도록 진행하였다.

일체형 계획_안진환, 김경민, 전아름
공도에 거주하는 각 세대들이 요구하는 다양한 기능들을 시민이라는 그룹으로 하나로 엮어서 모두를 위한 공유공간을 제공하면서, 각 세대들이 필요로 하는 전용공간도 하나의 건물에서 제공한다.

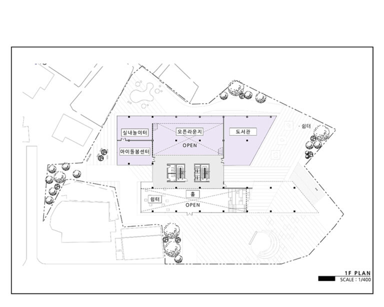
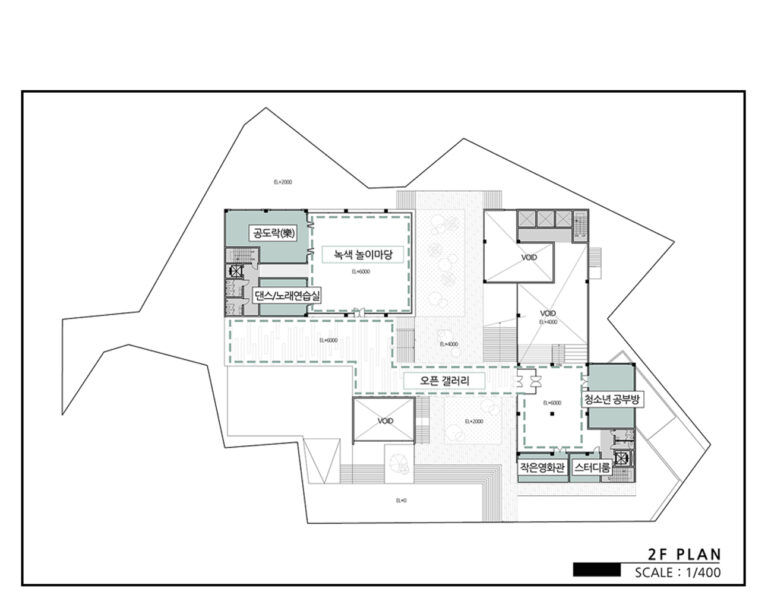
분동계획_이주영, 신은영, 김주찬
연령에 관계없이 다양하게 방문하는 공공시설에 ‘마당’의 개념을 가져와 열린 시민 공간이라는 이미지를 극대화 시키고, 내외부의 프로그램들이 마당을 통해 얽혀 다양한 외부공간이 조성된 열린 문화공간을 제안한다.

리모델링 계획_김은수, 조준범, 이소연
New-tro : “기존 세대와 새로운 세대간의 만남”이라는 컨셉을 통해 모든 세대를 통합할 수 있는 공도의 열린 시민공간을 제안한다.





















